Sold

UNDER CONTRACT

INSPECT NOW BY APPOINTMENT | 9872 7003
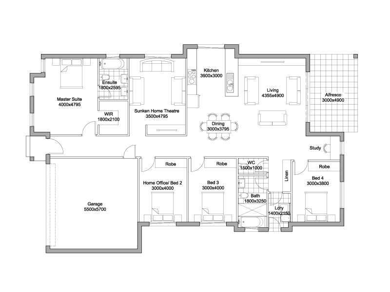
This large 4 bedroom + media house is only weeks away from completion. This package is ready to move in with no hidden costs. The design reveals flawless high-end finishes with countless extras which are promoted through impeccable design and layout.

• Contemporary facade with a combination of exposed brick and render which accentuate the large single storey frontage
• 2.7m high ceiling with feature ceilings, walls and sleek bulkheads
• Open plan kitchen with breakfast bar including a spacious family room, dining area and sunken media room
• Polyurethane kitchen with 900mm stainless steel Omega Italian appliances and an abundance of storage with pantry and stylish 40mm stone benchtop with waterfall (including gas cooktop)
• Designer 600x600 tiles to all living areas and designer 300x600 tiles to bathrooms define modern and sleek living
• The master suite is large and well lit with complete walk-in-robe and spacious ensuite
• Outdoor entertaining is so easy with a large Alfresco with plenty of room for dining and mingling, also includes gas bayonet and power
• Additional and must have extras include study, Daikin 3-zone ducted air-conditioning, electric timber look double garage door and timber look alrfesco tiles

Discover this state of the art House in one of Minto’s most central locations near a family park, shopping Centre and train station.

Book an inspection now on 9872 7003. Don’t waste your time waiting for a house to be built and trying to avoid extra costs. Move in NOW...

*Time frame or completion may vary slightly



All information contained in this material is provided in good faith and derived from sources believed to be accurate and current as at the date of publication. KRE Property Investments or Kawnine Real Estate or any related company does not guarantee its accuracy and interested persons should rely on their own enquiries.

Features

Study
4 2 2
Address Lot 63 Pendergast Avenue, Minto
Price SOLD
Property Type Residential
Property ID 421
Category House

Agent Details

Hossain Mehdee photo

Hossain Mehdee

0424 122 122
View Profile